Seeing the warm, welcoming home that looks totally at one with nature in its hillside setting, it is hard to imagine it was once a 1970s bungalow that had little going for it. With a touch of understatement, Celia McCarthy describes the original property she bought with her husband Keith, as “rather low-spec”.
“It was very poorly insulated and certainly underperformed on the energy front,” she says. This latter aspect was just one of the areas the couple wanted to improve when renovating the house, and a meeting with Chris Hawkins of Forgework Architects resulted in a renovation brief with terms such as “environmentally sympathetic”, “energy efficient” and “pared-back”.
The stunning results saw this innovative project win the Best Renovation category in the Homebuilding & Renovating Awards 20025, in partnership with The Times and The Sunday Times. It then went on to win the coveted overall title of Home of the Year, with the judges describing the house as “breathtaking and heartwarming in equal measure”.
Project details
- Location Bath, Somerset
- House type 1970s bungalow
- House size 230sq m
- Build cost £3,100sq m
- Architects Forgeworks Architects
The design brief
“We didn’t want a showcase house,” says Celia, “we were after a home that would be futureproofed and which didn’t stray too far outside the existing footprint.” Chris elaborates: “We came up with a design that was contemporary yet timeless, and which would mean reworking the bungalow, reusing as much of the existing fabric as possible, and transforming it into a modern lifetime home,” he says.
“As well as improving the eco-performance, the renovation involved reconfiguring the layout and relocating the entrance, creating terraced outdoor spaces and optimising natural light.”
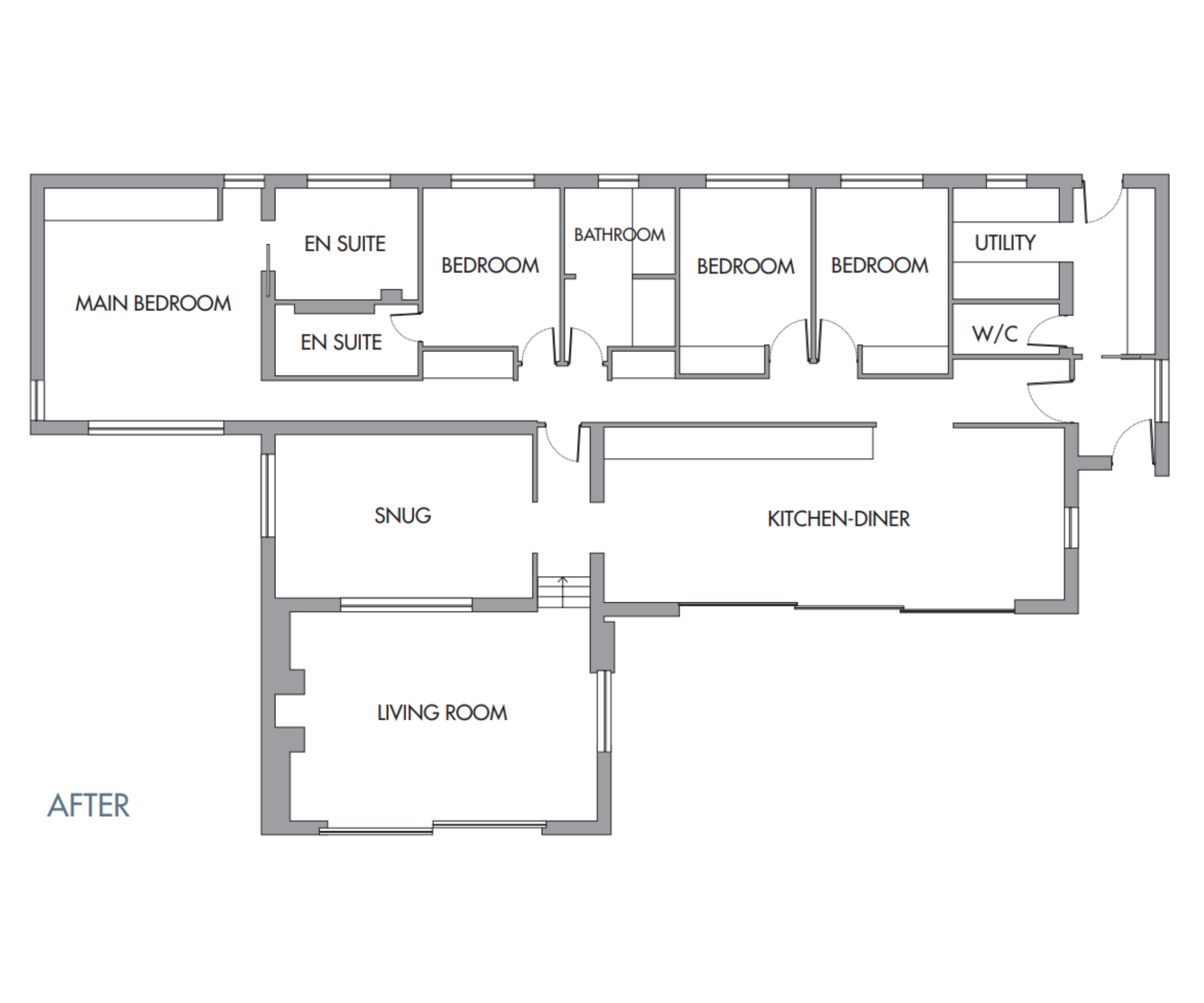
Significantly, it had to remain as a bungalow. “For us, there wasn’t a particular attraction to single-level living, but there was a covenant on the property restricting it to one floor,” says Celia. “Having been used to living in flats while in London, the idea of being on one level was fine as long as we could achieve a clever separation between the living and sleeping parts of the property.”
Choosing cedar
A major influence on the appearance of the exterior was Keith’s desire to have a single material covering the whole building, so after considering a number of options – including black timber and Welsh slate – the pair decided on Canadian cedar shingles for cladding the house.
It’s a choice they are both glad to have made, but it came with complications once the build was underway. “The Ukraine conflict began two weeks into our build and the cost of materials increased exponentially,” says Celia.
“I ordered the cedar shingles myself and each day I could see the cost of them rising at an alarming rate – not to mention the timber battens they were nailed onto, which doubled in price during the build. Another aspect we hadn’t considered was that installing shingles is an incredibly labour-intensive process – the roof, which we totally replaced, took about three times longer to cover than it would have if we’d chosen a material such as slate roofing.”
Planning demands
Bearing in mind that the property is within a conservation area, planning permission for the project proved fairly straightforward.
“However, there were numerous ecological protection and wildlife enhancement conditions attached to the site,” says Celia. “We had to include bird and bat boxes, hedgehog highways, tree protection and proof of biodiversity gain.”
Consideration for the environment was demonstrated in other ways, too. The gabions that front the terrace garden are backfilled with material from the site, retaining as much waste from the project on site as possible and removing the need for it to be transported elsewhere, thereby reducing the carbon footprint of the building.
“An added benefit of the gabions is that they provide a huge area of habitat for insects,” says Celia. “Although, to our surprise, we were still required to install a bug hotel before we could get sign-off on the build!”
Meanwhile, the couple’s house boasts its own sustainability credentials, too. Under the cladding there is external insulation on all the walls, which bumps up the whole efficiency of the building.
“We removed the mains gas supply and instead use an air-source heat pump and an array of solar panels for our energy needs,” says Celia. Installing the underfloor heating was a relatively simple process as the bungalow has a concrete base, so it was just a case of screeding throughout, incorporating the UFH.
A practical layout
Celia, who runs her own company, Richardson Studio, combined her skills in interior design and interior architecture to help fine tune the interior layout Chris designed.
“Once he showed us the plans, with the living quarters at one end and the bedrooms at the other, I knew we’d made the right choice of architects – he clearly understood how we were going to live in this house,” says Celia. “My role then was to drill down into the detail, requesting an extra door here and there for added privacy,” she adds.
“I also realised we didn’t need the huge main ensuite bathroom that was down on the plans – instead, we split it into two, adding a second smaller bathroom that is accessed from the guest room.”
Regarding the aesthetics, Celia felt the heavy retrofit could easily give the interior the clinical feel of a typical new build, so it was important to introduce both texture and colour, and the result is a home that exudes an air of fun and life.
“The wall colours all work well together, but there is still a sense of change as you walk from one space to another,” she says. “I think design and interiors should evoke an emotion, and if they don’t, are they really achieving anything?”
“The kids absolutely loved the evolving process of the project, too. Being able to imagine it all the way from when it was just a building site until it was completely finished, and getting to put their own stamp on their rooms was key for them. Plus, having their friends complementing them on the house always helps.”
Celia’s singular approach is perhaps most evident in the kitchen-diner where the self-designed units scream originality. The unique-looking cabinetry was made of band-sawn oak, which shows the saw marks on it.
“Oak veneer can look a bit too flat as a finish, whereas this cutting process has given the surfaces a lovely texture,” says Celia. “The same type of texture can be seen on the oak floor in the lounge.”
“When we approached this project we put a lot of thought into so many aspects that we care about,” says Celia. “We see a lot of developments that are quite lifeless on the outside, which is why we incorporated gabions, grasses and particularly the cedar shingles – they were our must-have features.”
From the architect
Chris Hawkins of Forgeworks Architects, says: “In Celia and Keith’s retrofit project, the use of Blue Label Canadian western red cedar shingles proved the statement material of the project. This sustainable natural material, traditionally associated with North American craftsmanship, offered us the opportunity to reimagine the house with a tactile, contemporary identity.
“The fine scale of the shingles helped to visually soften the building’s mass, breaking it down into a more relatable, human-scaled form. What sets these shingles apart is their flexibility – equally suited to both roof and wall applications, they allowed us to create a seamless, wrapped envelope.
This holistic treatment not only concealed an enhanced thermal blanket beneath, but also delivered a calm, monolithic appearance that feels both modern and timeless. The natural variation in tone and texture brings warmth and depth, making the house sit comfortably in it landscape while standing out as something thoughtfully considered.
“For homeowners seeking a sustainable, design-led material for renovation projects, western red cedar shingles offer a balance of character, durability and architectural clarity.”
Celia concludes, “For us, buildings should be textural and living, rather than sanitised and dead, and I think that’s what we’ve achieved here.”
If you enjoyed looking around this property, you might also like to see this couple’s bright and airy oak-frame house, which is fully energy self-sufficient, or this waterside eco home in Wiltshire that was built using local materials.
View the original article and our Inspiration here

















Leave a Reply